自治会館改修計画
南流山自治会館の改修計画に関する情報をこちらの特設ページでご確認いただけます。本ページでは、改修計画の概要、今後の検討資料、過去の議事録などを随時公開し、皆様に透明性を持って進捗状況をご報告いたします。改修に向けた議論や方針決定の過程についてもお知らせしていきますので、ぜひご覧ください。今後も自治会員の皆様と共に、より良い自治会館の実現を目指してまいります。
最新の自治会館改修検討資料
2025年11月17日現在
2025年11月17日現在
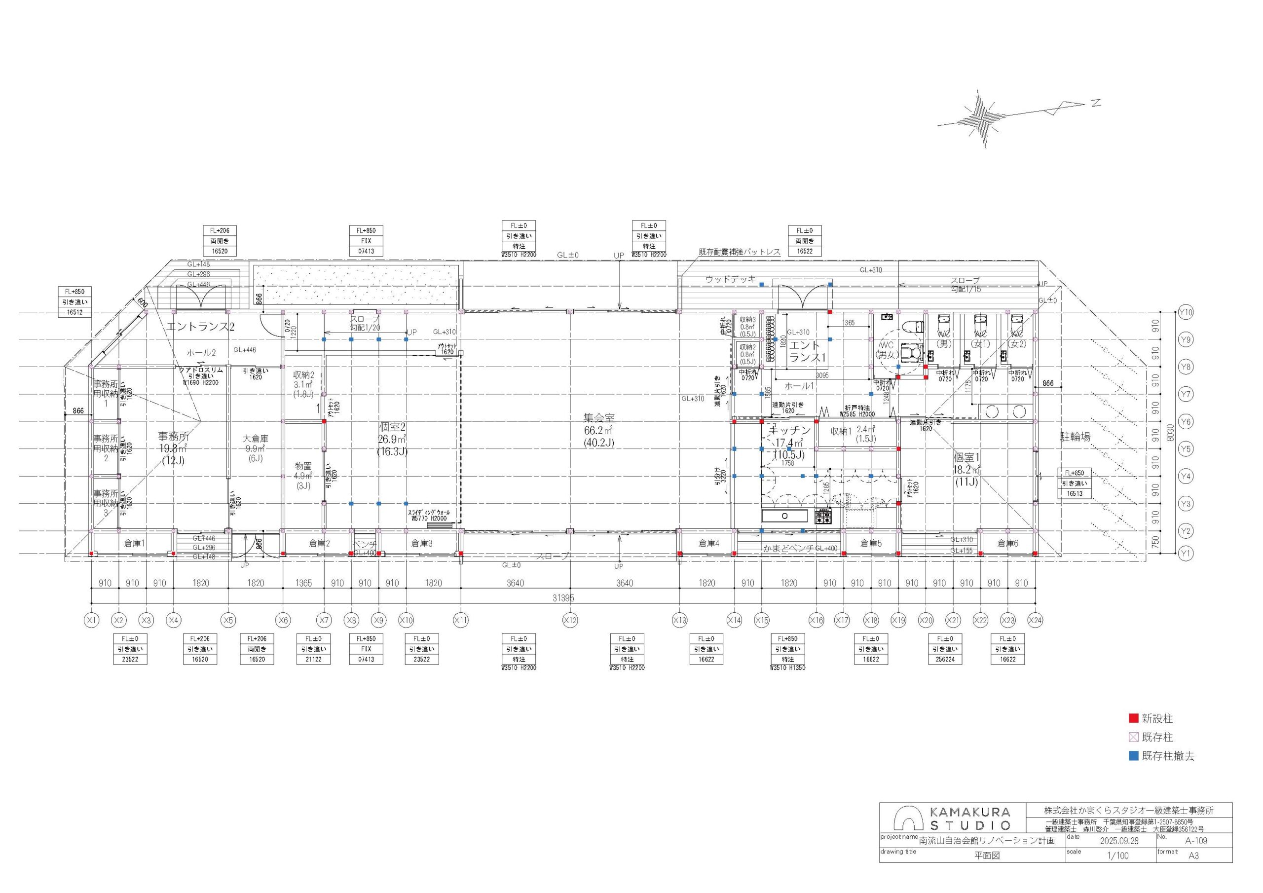
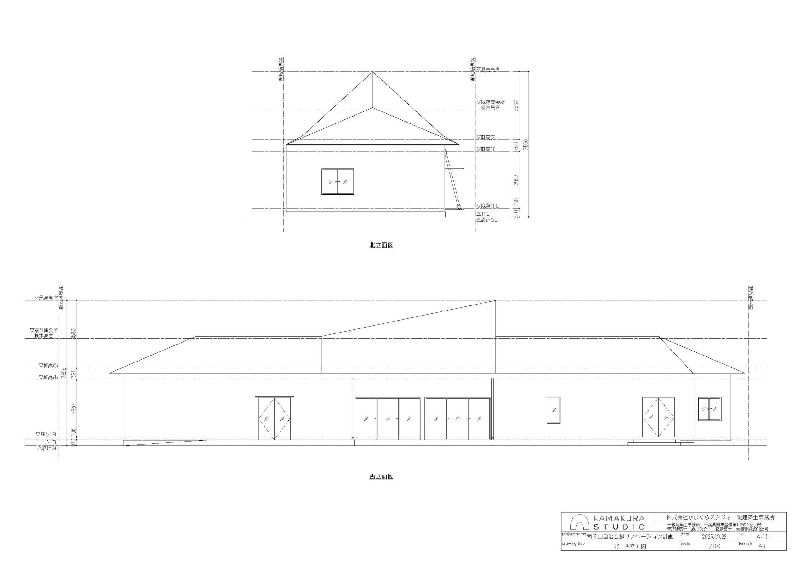
自治会館改修 検討資料
これまでの議事録
令和7年度
自治会館の改修・利活用検討委員会
令和6年度
自治会館の改修・利活用検討委員会
南流山自治会館 大規模改修
見積参加事業者の募集は
終了しました
■ 募集期間:
令和7年5月1日(木)~ 令和7年9月30日(火)
■ 応募要件:
原則、以下の要件をすべて満たしていること
- 1. 工事売上高(直近三年度平均):1億円以上
- 2. 自己資本(純資産の部):1千万円以上
- 3. 本店または営業所が以下の地域に所在すること
流山市・松戸市・柏市・野田市・三郷市・八潮市・葛飾区・足立区 - 4. 上記地域での営業継続年数が5年以上であること



















